
Ansprechpartner:
ICN GmbH
Tel. 03596 509240 | icn@neustadt-sachsen.de
und
Stadt Neustadt in Sachsen
Amt für Stadtentwicklung und Bauwesen | Tel. 03596 569260 | Kontakt
Kirschallee 1
Die Revitalisierung der Industriebrache des ehemaligen Kombinates Fortschritt Landmaschinen wurde in den Jahren 2015 bis 2017 aus Mitteln der Gemeinschaftsaufgabe "Verbesserung der regionalen Wirtschaftsstruktur" durch den Freistaat Sachsen gefördert. Der umfassend neu erschlossene Industriestandort mit einer Fläche von 78.000 m² besitzt einen möglichen Bebauungsgrad von 80 %, der durch die angesiedelten Unternehmen komplett belegt ist.
Bebauungsplan Industriegebiet Kirschallee
Planzeichnung
Textliche Festsetzungen
Begründung
Bebauungsplan Industriegebiet Kirrschallee - 1. Änderung
Planzeichnung
Textliche Festsetzungen
Begründung
Kirschallee 2
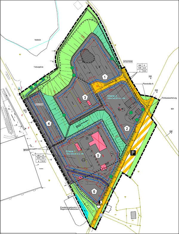
Die Revitalisierung Industriebrache Kirschallee 2, die auf sich zwei unterschiedlichen Ebenen befindet, begann Anfang 2019. Das wohl weit über die Region hinaus bekannteste Ereignis war die Sprengung des 102 Meter hohen Spannbetonschornsteins am 25. September 2019. Zeitgleich wurde die bestehende Altsubstanz weiter zurückgebaut. So verschwanden neben dem niedergelegten Schornstein alle ehemaligen Ruinen und Gebäude, auch die auf der oberen Ebene. Anschließend erfolgte die Verlegung der Schmutz- und Regenwasserkanäle, der Trinkwasserleitung, die Erweiterung des Regenwasserrückhaltebeckens, der Bau einer Löschzisterne sowie der neuen Erschließungsstraße, die am 30. Juni 2020 asphaltiert wurde.
Die größte Herausforderung des Vorhabens war und ist die fachgerechte Beseitigung der Altlasten, hier insbesondere der mit Altöl kontaminierten Flächen, wo sich das Öl in einem Bereich bis fünf Meter Tiefe in der Erde befand.
Mit der verkehrstechnischen Erschließung der Grundstücke der oberen Ebene Kirschallee 2 wurde das Gesamtvorhaben fertiggestellt und erste Grundstücke veräußert. Interessenten sind herzlich willkommen. Ansprechpartner für die Vermarktung ist die ICN GmbH (s. oben).
Bebauungsplan Industriegebiet Kirschallee 2
Planzeichnung
Textliche Festsetzungen
Begründung

Planzeichnung Kirschallee 1 - 1. Änderung

Planzeichnung Kirschallee 2